Обяви 0 За нас Контакти
Продава 3-СТАЕН
град София, Витоша
281 480 €
550 527.03 лв.

(2 288 €, 4 474.94 лв./m2)
Цената е с включено ДДС
История на цената
Публикувана в 13:31 на 18 март, 2026 год.
Обявата е посетена 3747 пъти.
Площ:
123 m2
Етаж:
3-ти от 5
Газ:
ДА
ТEЦ:
НЕ
Строителство:
Тухла, Ще бъде въведен в експлоатация 2027 г.

Описание на имота:


СГРАДА NOOK ЖИЛИЩЕ С МЕТРО НА САМИЯ ВХОД
ДИРЕКТНО ОТ ИНВЕСТИТОРА | БЕЗ КОМИСИОННА | ЦЕНАТА Е С ДДС
ТРИСТАЙНИ АПАРТАМЕНТИ В ЖИЛИЩНА СГРАДА NOOK
Издаден АКТ 14 | Очакван АКТ 16 декември 2027 г.
📍 МЕСТОПОЛОЖЕНИЕ:
Сградата се намира в кв. Витоша един от най-динамично развиващите се райони на София. Отлична локация с развиваща се инфраструктура, удобен градски транспорт и бързи връзки с основни пътни артерии.
Директен достъп до проектиращата се и официално обявена за изпълнение през 2030 г. метростанция Витоша (продължение на Метролиния 2), разположена на крачка от входа на сградата.
На 94 м от новопроектиращия се градски парк Лозенец .
Бърз достъп до Околовръстен път 800 м.
Пешеходно разстояние до Студентски град отлична дългосрочна инвестиция с висок наемен потенциал.
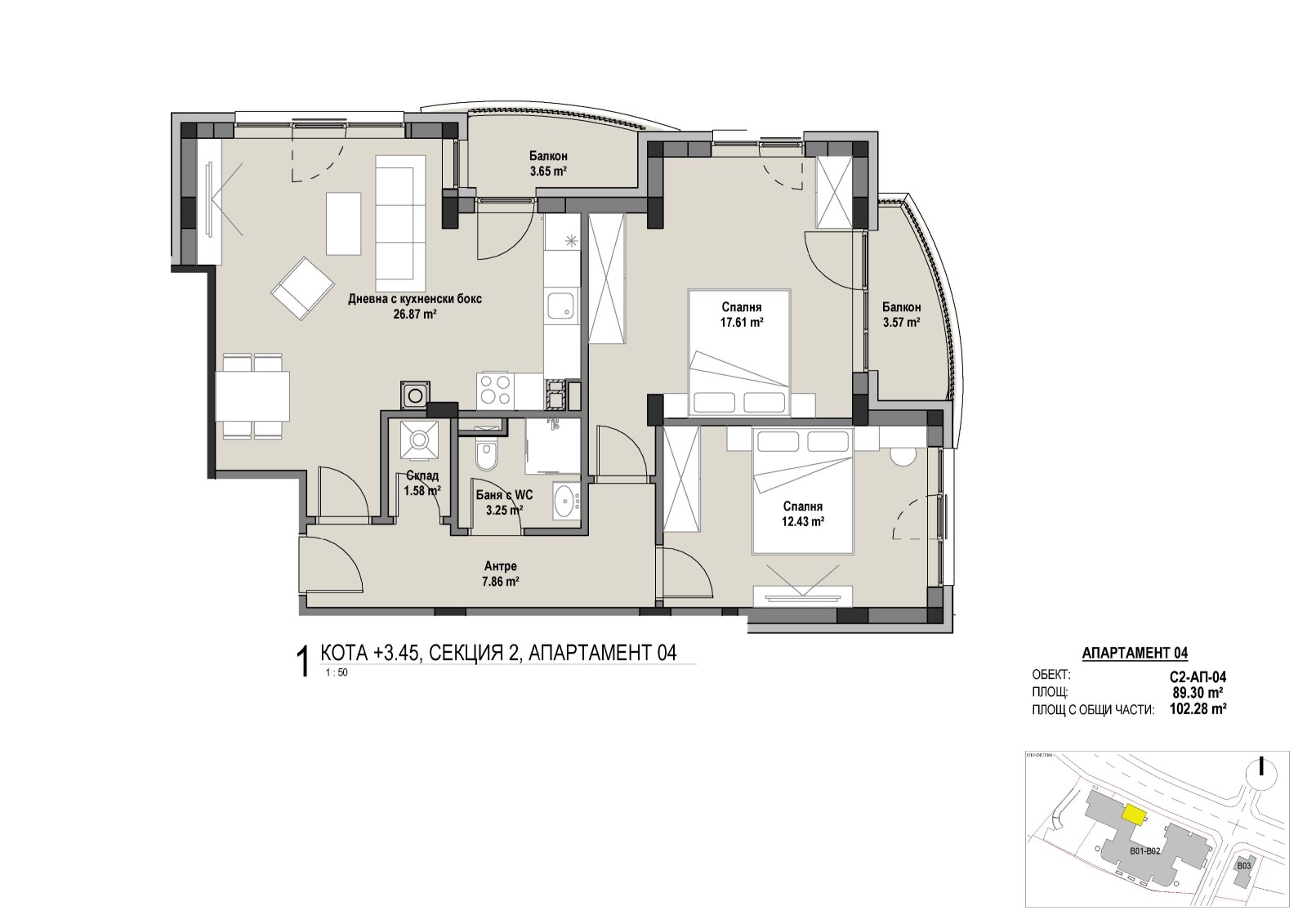
РАЗПРЕДЕЛЕНИЕ:
Апартаментите се състоят от антре, дневна с кухненски бокс, две спални, баня с тоалетна и тераса.
- Квадратура на тристайни апартаменти: от 87,90 кв.м до 124,42 кв.м с общи части
- Складови помещения включени в цената: от 3,29 кв.м до 11,26 кв.м застроена площ
- Етажност: от 1-ви до 3-ти надпартерен етаж
ХАРАКТЕРИСТИКИ НА СГРАДАТА:
- Асансьор Орона
- Блиндирани входни врати Solid 55, модел Classic
- Енергийна ефективност Клас А
- Модерна фасада с 15 см XPS фасадна топлоизолация, намаляваща топлинните загуби до 65% и разходите за отопление до 35%
- Декоративна фасадна мазилка с визия на естествен камък
- Окачена фасада на партерно ниво, изолирана с минерална вата и завършена с технически камък
- Седемкамерна дограма с троен нискоемисионен стъклопакет REHAU SYNEGO
- Големи френски прозорци за максимална светлина
- Метални дизайнерски парапети
- Луксозно завършени общи части с осветление с датчици
- Озеленяване по проект
- Видео-домофонна система и контрол на достъп
Допълнително:
Възможност за закупуване на паркомясто или гараж.
📞 За информация и огледи: +359 885 59 59 77
Разгледайте екстериора на сградата дистанционно чрез интерактивен виртуален тур:
❗❗❗https://storage.googleapis.com/25001-tour-02/vtour/tour.html
✉️ e-mail: sales@nook.bg
Повече информация за проекта, свободните обекти, цените и разпределенията ще откриете на официалния сайт: www.nook.bg
Особености
Тухла
Асансьор
С гараж
С паркинг
Интернет връзка
Видео наблюдение
Контрол на достъпа
За контакт:
0885595977
Инвеститор:
ПРАЙМ АСЕТ
0885595977
ПРАЙМ АСЕТ logo
В imot.bg от 2024 г.
primeasset.imot.bg
Адрес:
област София, гр. София, ул. Дунав 1
http://primeasset.bg
ИЗПРАТИ ЗАПИТВАНЕ
ИЗПРАТИ ЗАПИТВАНЕТО

Продава 3-СТАЕН
град София, Витоша
Обява: 1c177383346098406

281 480 €
550 527.03 лв.
История на цената
(2 288 €, 4 474.94 лв./m2)

Цената е с включено ДДС
ЗАПАЗИ ОБЯВАТА

Местоположение: град София, Витоша

Допълнителни данни за имотите в района и сравнение с други райони

Покажи

Период

и 4 месеца

* Средните цени са определени чрез медианна стойност